Máquina enfardadeira automática de bandeja de cabos
      
                1. Melhorar a eficiência da produção: A enfardadeira automática adota um sistema operacional automatizado, que pode completar continuamente a ação de enfardamento, aumentando significativamente a velocidade de produção. Em comparação com a embalagem manual, é mais eficiente e ajuda a encurtar o ciclo de produção.
2. Economize custos de mão de obra: A enfardadeira automática pode substituir vários trabalhadores manuais nas operações de embalagem, reduzindo o investimento da empresa em recursos humanos e reduzindo os custos de mão de obra.
Principais componentes e parâmetros
Nome Descrição
O corpo principal da estrutura é soldado em tubos quadrados 80x80x3
As correias transportadoras são todas feitas de correias transportadoras antiderrapantes espessadas
A placa da alavanca giratória Q235 é cortada e processada a laser
O elevador giratório de material é movido por elevação pneumática
Os eixos de transmissão são todos feitos de aço 45# e a superfície é revestida com Luo.
Slideways adotam trilhos quadrados de precisão
Parafuso parafuso de esfera 2525
Servo motor de elevação
A enfardadeira hot melt
Nome Descrição
Fonte de alimentação, potência 220v/50Hz 500w
Velocidade de embalagem ≤1,5 segundos/pista
Espessura da cinta aplicável (0,45-1,0) mm*largura (9-15) mm
Características: Nunca perca fita, detecção eletrônica
Display CNC, operação simples
Os padrões de acessórios são baseados em Milão, Alemanha
Parte de tração
Nome Descrição
O corpo principal da estrutura é soldado em tubos quadrados 80x80x3
Servo motor de potência móvel com redutor e transmissão de cremalheira e pinhão
A corrediça é feita de aço 45#, com tratamento térmico de alta frequência e revestimento Luo na superfície. Possui assento de alumínio espesso e está equipado com controle deslizante estendido.
A fixação adota cilindro modelo TN para evitar rotação
Parte de paletização
Nome Descrição
O corpo principal da estrutura é soldado em tubos quadrados 80x80x3
O corpo principal do robô é feito de perfis de alumínio espessos e resistentes.
O manipulador adota a forma de bifurcar primeiro e depois pressionar para garantir a firmeza da preensão e a estabilidade do movimento.
O rolo de movimentação de paletes é feito de aço 45#, revestido de superfície, sólido de φ45mm
Régua giratória: Para garantir a quadratura de cada pilha de quilhas e não arranhar as quilhas durante o movimento, uma régua redonda é selecionada e equipada com um rolamento giratório em seu interior.
⑤Gabinete de eletricidade
Nome Quantidade Marca Modelo
controle de exibição plc 1
Controle de exibição de expansão 2 Plc
1 controle de tela sensível ao toque
Chave de proximidade vários NPN, 24VDC, normalmente aberta
Interruptor fotoelétrico vários NPN, 24VDC, normalmente aberto
Elétrica de baixa tensão 1 Chint
Servo motor 4 Hechuan 0,75 kW
A maioria dos motores de equipamentos utiliza servo motores para tornar o equipamento mais rápido e flexível.
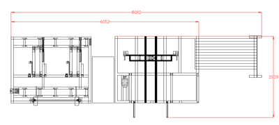
O comprimento do equipamento é de cerca de 6 metros, o comprimento de empilhamento é de 2 metros e o comprimento total é de cerca de 8 metros.
Largura aproximadamente 2,9 metros

                                            
                                                                                        
                                        
                                            
                                                                                        
                                        
